
Te huur
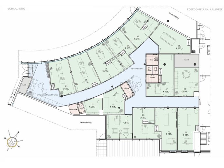
In het hart van het groeiende Aalsmeer vordert de bouw van een modern en duurzaam gezondheidscentrum. Het nieuwbouwproject is strak ontworpen met een grote glazen voorzijde en voorzien van alle hedendaagse faciliteiten. Hier vindt u de ideale ruimte voor zorgprofessionals zoals huisartsen, tandartsen, fysiotherapeuten, apothekers, maatschappelijk werkers of wijkverpleegkundigen. Met veel enthousiasme kunnen we u melden dat de verhuur van het turn-key
gezondheidscentrum in het hart van Aalsmeer nu in de verhuur is, en wordt opgeleverd in april 2026.
Elke unit wordt turn-key opgeleverd met vloerbedekking, pantry, verlichting en meer! De ruimtes worden afgebouwd en zijn flexibel per unit te huur. Het moderne gezondheidscentrum is onderdeel van een levendig woonproject met drie appartement complexen, waarin sociale huur-, middenhuur- en vrije sectorwoningen samenkomen
Bent u op zoek naar een state-of-the art gezondheidscentrum dichtbij de kenmerkende watertoren in Aalsmeer? Neem dan contact op voor meer informatie



















